pod nebom

Как правильно встраивать технику на кухне

Серегина 5 ЖК
Розетки на кухне для встраиваемой техники. Розетки под встраиваемую технику на кухне.
Как правильно встраивать технику на кухне. Розетки на кухне для встраиваемой техники. Розетки под встраиваемую технику на кухне.
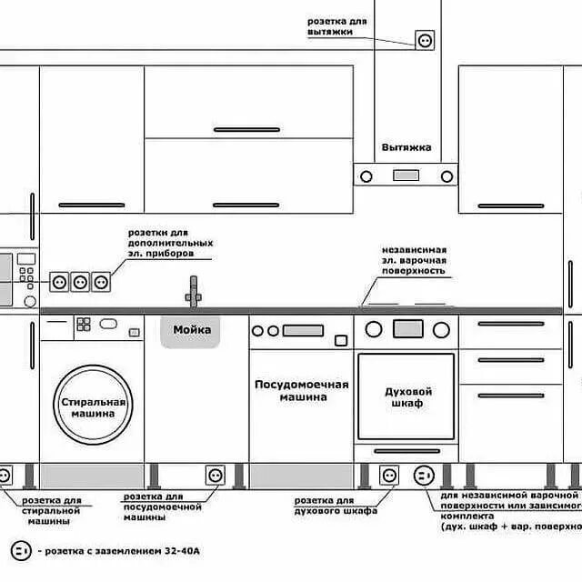
Схема расположения электроточек на кухне. Проводка на кухне схема расположения розеток. Высота розетки для СВЧ.
Как правильно встраивать технику на кухне. Схема расположения электроточек на кухне. Проводка на кухне схема расположения розеток. Высота розетки для СВЧ.
Размещение техники на кухне. Неудачные кухонные гарнитуры.
Как правильно встраивать технику на кухне. Размещение техники на кухне. Неудачные кухонные гарнитуры.
Размещение розеток и выключателей на кухне. Высота розеток на кухне. Размещение розеток на кухне.
Как правильно встраивать технику на кухне. Размещение розеток и выключателей на кухне. Высота розеток на кухне. Размещение розеток на кухне.
Встраиваемая техника для кухни. Компактные кухни. Встраиваемая техника для маленькой кухни. Кухня с встроенной бытовой техникой.
Как правильно встраивать технику на кухне. Встраиваемая техника для кухни. Компактные кухни. Встраиваемая техника для маленькой кухни. Кухня с встроенной бытовой техникой.
Как спрятать технику на кухне. Микроволновку скрыть за фасады.
Как правильно встраивать технику на кухне. Как спрятать технику на кухне. Микроволновку скрыть за фасады.
Расстановка розеток на кухне. Розетки на кухне для встраиваемой техники.
Как правильно встраивать технику на кухне. Расстановка розеток на кухне. Розетки на кухне для встраиваемой техники.
Электровывод для вытяжки высота. Схема расположения розеток на кухне.
Как правильно встраивать технику на кухне. Электровывод для вытяжки высота. Схема расположения розеток на кухне.
Как правильно встраивать технику на кухне
Проекты кухонных гарнитуров. Компоновка угловой кухни. Проект кухни угловой с розетками.
Как правильно встраивать технику на кухне. Проекты кухонных гарнитуров. Компоновка угловой кухни. Проект кухни угловой с розетками.
Как правильно встраивать технику на кухне
На какой высоте располагается встроенная печь и микроволновка.
Как правильно встраивать технику на кухне. На какой высоте располагается встроенная печь и микроволновка.
Шкаф для бытовой техники на кухне. Шкаф для кофемашины на кухне. Шкаф для техники на кухне. Хранение бытовой техники на кухне.
Как правильно встраивать технику на кухне. Шкаф для бытовой техники на кухне. Шкаф для кофемашины на кухне. Шкаф для техники на кухне. Хранение бытовой техники на кухне.
Как правильно встраивать технику на кухне
Схема розеток на кухне. Расстановка розеток на кухне. Схема размещения розеток на кухне.
Как правильно встраивать технику на кухне. Схема розеток на кухне. Расстановка розеток на кухне. Схема размещения розеток на кухне.
Встраиваемая техника для кухни икеа.
Как правильно встраивать технику на кухне. Встраиваемая техника для кухни икеа.
Место для кухонной техники. Шкаф для мелкой бытовой техники на кухне. Кухня с бытовой техникой. Небольшой шкафчик для кухни для бытовой техники.
Как правильно встраивать технику на кухне. Место для кухонной техники. Шкаф для мелкой бытовой техники на кухне. Кухня с бытовой техникой. Небольшой шкафчик для кухни для бытовой техники.
Встроенная техника для кухни. Маленькие кухни. Кухня с встроенной бытовой техникой. Встраиваемая кухня маленькая.
Как правильно встраивать технику на кухне. Встроенная техника для кухни. Маленькие кухни. Кухня с встроенной бытовой техникой. Встраиваемая кухня маленькая.
Правила установки розеток и выключателей в квартире. Схема электропроводки на кухне. Схема монтажа электропроводки на кухне.
Как правильно встраивать технику на кухне. Правила установки розеток и выключателей в квартире. Схема электропроводки на кухне. Схема монтажа электропроводки на кухне.
Встраиваемая техника для кухни. Встроенная кухня. Гарнитур со встроенной техникой. Встроенный кухонный гарнитур.
Как правильно встраивать технику на кухне. Встраиваемая техника для кухни. Встроенная кухня. Гарнитур со встроенной техникой. Встроенный кухонный гарнитур.
Высота розетки для посудомойки. Схема розеток на кухне. Схема размещения розеток на кухне. Схема расположения розеток и выключателей на кухне.
Как правильно встраивать технику на кухне. Высота розетки для посудомойки. Схема розеток на кухне. Схема размещения розеток на кухне. Схема расположения розеток и выключателей на кухне.
Схема электрики на кухне розетки. Схема подключения розеток на кухне. Схема установки духового шкафа. Розетки на встроенной кухне схема встраивания.
Как правильно встраивать технику на кухне. Схема электрики на кухне розетки. Схема подключения розеток на кухне. Схема установки духового шкафа. Розетки на встроенной кухне схема встраивания.
Эргономика кухни правильное планирование кухни в хрущевке. Эргономика угловой кухни правильное планирование. Эргономика газовой плиты.
Как правильно встраивать технику на кухне. Эргономика кухни правильное планирование кухни в хрущевке. Эргономика угловой кухни правильное планирование. Эргономика газовой плиты.
Розетка для духового шкафа схема. Розетка для варочной панели чертеж. Схема установки розеток на кухне.
Как правильно встраивать технику на кухне. Розетка для духового шкафа схема. Розетка для варочной панели чертеж. Схема установки розеток на кухне.
Встраиваемая техника для кухни. Встроенная техника для кухни. Встраиваемая микроволновая печь в кухне. Встроенная духовка на кухне.
Как правильно встраивать технику на кухне. Встраиваемая техника для кухни. Встроенная техника для кухни. Встраиваемая микроволновая печь в кухне. Встроенная духовка на кухне.
Высота расположения розеток. Высота розетки для духового шкафа. Высота розеток на кухне.
Как правильно встраивать технику на кухне. Высота расположения розеток. Высота розетки для духового шкафа. Высота розеток на кухне.
Как правильно встраивать технику на кухне
Шкаф для бытовой техники на кухне. Шкаф для техники на кухне. Место для хранения кухонной техники. Размещение бытовой техники на маленькой кухне.
Как правильно встраивать технику на кухне. Шкаф для бытовой техники на кухне. Шкаф для техники на кухне. Место для хранения кухонной техники. Размещение бытовой техники на маленькой кухне.
Встраиваемая техника для кухни икеа. Встраиваемая кухня икеа. Встраиваемая техника Индезит для кухни. Кухня с бытовой техникой.
Как правильно встраивать технику на кухне. Встраиваемая техника для кухни икеа. Встраиваемая кухня икеа. Встраиваемая техника Индезит для кухни. Кухня с бытовой техникой.
Стандартная высота установки розеток. Схема размещение розеток на кухне под встраиваемую технику. Высота розеток рабочей зоны кухни.
Как правильно встраивать технику на кухне. Стандартная высота установки розеток. Схема размещение розеток на кухне под встраиваемую технику. Высота розеток рабочей зоны кухни.
Шкаф для кухонной техники. Шкаф для мелкой бытовой техники на кухне. Шкаф для хранения мелкой кухонной техники. Шкаф для кофемашины на кухне.
Как правильно встраивать технику на кухне. Шкаф для кухонной техники. Шкаф для мелкой бытовой техники на кухне. Шкаф для хранения мелкой кухонной техники. Шкаф для кофемашины на кухне.
Розетки на кухне для встраиваемой техники. Размещение розеток на кухне. Розетки под встраиваемую технику на кухне.
Как правильно встраивать технику на кухне. Розетки на кухне для встраиваемой техники. Размещение розеток на кухне. Розетки под встраиваемую технику на кухне.
Схема электрики на кухне розетки. Схема размещения розеток на кухне. Размещение розеток для кухонной техники.
Как правильно встраивать технику на кухне. Схема электрики на кухне розетки. Схема размещения розеток на кухне. Размещение розеток для кухонной техники.
Встраиваемая кофемашина Smeg cmsc45b. Siemens ct636les6. СВЧ икеа встраиваемая. Встроенная кофемашина Miele.
Как правильно встраивать технику на кухне. Встраиваемая кофемашина Smeg cmsc45b. Siemens ct636les6. СВЧ икеа встраиваемая. Встроенная кофемашина Miele.
Схема подключения кухонной проводки. Разводка проводки на кухне схема. Рекомендуемая схема розеток на кухне. Схема расстановки розеток на кухне.
Как правильно встраивать технику на кухне. Схема подключения кухонной проводки. Разводка проводки на кухне схема. Рекомендуемая схема розеток на кухне. Схема расстановки розеток на кухне.
Удобная планировка кухни. Размещение мебели на кухне. Планировка мини кухни.
Как правильно встраивать технику на кухне. Удобная планировка кухни. Размещение мебели на кухне. Планировка мини кухни.
Проект кухни. Размещение розеток на угловой кухне.
Как правильно встраивать технику на кухне. Проект кухни. Размещение розеток на угловой кухне.
Угловая кухня с посудомоечной машиной. Встраиваемые кухни. Встроенная техника для кухни. Угловая кухня с встроенной бытовой техникой.
Как правильно встраивать технику на кухне. Угловая кухня с посудомоечной машиной. Встраиваемые кухни. Встроенная техника для кухни. Угловая кухня с встроенной бытовой техникой.
Встраиваемая техника для кухни. Кухня с духовкой. Встроенная техника для кухни. Кухня со встроенной духовкой.
Как правильно встраивать технику на кухне. Встраиваемая техника для кухни. Кухня с духовкой. Встроенная техника для кухни. Кухня со встроенной духовкой.
Розетки под технику на кухне. Размещение розеток на кухне. Схема розеток на кухне.
Как правильно встраивать технику на кухне. Розетки под технику на кухне. Размещение розеток на кухне. Схема розеток на кухне.
Шкаф для кухонной техники. Шкаф для бытовой техники на кухне. Удобные шкафы для кухни. Место для хранения кухонной техники.
Как правильно встраивать технику на кухне. Шкаф для кухонной техники. Шкаф для бытовой техники на кухне. Удобные шкафы для кухни. Место для хранения кухонной техники.
Как правильно встраивать технику на кухне
Удобная планировка кухни. Удобные планировки кухонного гарнитура. Планировка угловой кухни. Угловая кухня правильная планировка.
Как правильно встраивать технику на кухне. Удобная планировка кухни. Удобные планировки кухонного гарнитура. Планировка угловой кухни. Угловая кухня правильная планировка.
Схема монтажа розеток на кухне. Как правильно установить розетки для встроенной техники. Как правильно распределить розетки на кухне.
Как правильно встраивать технику на кухне. Схема монтажа розеток на кухне. Как правильно установить розетки для встроенной техники. Как правильно распределить розетки на кухне.
Шкаф для кухонной техники. Шкаф для кофемашины на кухне. Шкаф для бытовой техники на кухне. Хранение бытовой техники на кухне.
Как правильно встраивать технику на кухне. Шкаф для кухонной техники. Шкаф для кофемашины на кухне. Шкаф для бытовой техники на кухне. Хранение бытовой техники на кухне.
Выдвижная полка для кухонной техники. Кофемашина в шкафу. Встроенный чайник в кухню. Шкаф для кухонной техники.
Как правильно встраивать технику на кухне. Выдвижная полка для кухонной техники. Кофемашина в шкафу. Встроенный чайник в кухню. Шкаф для кухонной техники.
Встроенная техника для кухни. Кухня с встроенной бытовой техникой. Крупная бытовая техника для кухни. Кухонная колонна с техникой.
Как правильно встраивать технику на кухне. Встроенная техника для кухни. Кухня с встроенной бытовой техникой. Крупная бытовая техника для кухни. Кухонная колонна с техникой.
Угловая кухня с встроенной микроволновкой. Кухня с встроенной бытовой техникой. Угловые кухни со встраиваемой техникой. Кухонный гарнитур со встроенной микроволновкой.
Как правильно встраивать технику на кухне. Угловая кухня с встроенной микроволновкой. Кухня с встроенной бытовой техникой. Угловые кухни со встраиваемой техникой. Кухонный гарнитур со встроенной микроволновкой.
Шкаф для кухонной техники. Шкаф на кухню. Шкаф для техники на кухне. Хранение на кухне в шкафах.
Как правильно встраивать технику на кухне. Шкаф для кухонной техники. Шкаф на кухню. Шкаф для техники на кухне. Хранение на кухне в шкафах.
Посудомойка на кухне. Компактная кухня со встроенной техникой. Кухонный гарнитур с посудомойкой. Маленькая угловая кухня с посудомойкой.
Как правильно встраивать технику на кухне. Посудомойка на кухне. Компактная кухня со встроенной техникой. Кухонный гарнитур с посудомойкой. Маленькая угловая кухня с посудомойкой.
Монтаж встраиваемого духового шкафа. Крепление духового шкафа встраиваемого. Монтаж встраиваемой духовки. Крепление для встроенной духовки.
Как правильно встраивать технику на кухне. Монтаж встраиваемого духового шкафа. Крепление духового шкафа встраиваемого. Монтаж встраиваемой духовки. Крепление для встроенной духовки.
Как правильно встраивать технику на кухне
Встроенная микроволновка на кухне. Кухня с духовым шкафом и микроволновкой. Кухня со встроенной духовкой и микроволновкой. Встроенная микроволновка в пенале.
Как правильно встраивать технику на кухне. Встроенная микроволновка на кухне. Кухня с духовым шкафом и микроволновкой. Кухня со встроенной духовкой и микроволновкой. Встроенная микроволновка в пенале.
Шкаф для кухонной техники. Наполнение кухонных шкафов. Функциональные шкафы для кухни. Функциональные ящики на кухне.
Как правильно встраивать технику на кухне. Шкаф для кухонной техники. Наполнение кухонных шкафов. Функциональные шкафы для кухни. Функциональные ящики на кухне.
Микроволновка в интерьере кухни. Микроволновая печь в интерьере кухни. Шкаф для кухонной техники. Встраиваемая микроволновка в интерьере.
Как правильно встраивать технику на кухне. Микроволновка в интерьере кухни. Микроволновая печь в интерьере кухни. Шкаф для кухонной техники. Встраиваемая микроволновка в интерьере.
Встроенная микроволновка 560x345. Встроенная микроволновка на кухне. Встраиваемая микроволновка в интерьере. Встроенная микроволновая печь в кухне.
Как правильно встраивать технику на кухне. Встроенная микроволновка 560x345. Встроенная микроволновка на кухне. Встраиваемая микроволновка в интерьере. Встроенная микроволновая печь в кухне.
Чертежи кухни со встроенной техникой.
Как правильно встраивать технику на кухне. Чертежи кухни со встроенной техникой.
Высота розетки для СВЧ. Размещение розеток для кухонной техники. Розетки для встроенной техники.
Как правильно встраивать технику на кухне. Высота розетки для СВЧ. Размещение розеток для кухонной техники. Розетки для встроенной техники.
Микроволновка икеа встраиваемая. Встраиваемая кофемашина кухня ikea. Встраиваемая техника для кухни икеа. Встроенная микроволновка на кухне.
Как правильно встраивать технику на кухне. Микроволновка икеа встраиваемая. Встраиваемая кофемашина кухня ikea. Встраиваемая техника для кухни икеа. Встроенная микроволновка на кухне.
Встроенная техника для кухни. Встроенная духовка на кухне. Духовка встроенная в шкаф. Кухня с духовкой.
Как правильно встраивать технику на кухне. Встроенная техника для кухни. Встроенная духовка на кухне. Духовка встроенная в шкаф. Кухня с духовкой.
Конструкция кухонного гарнитура. Расстановка техники на кухне.
Как правильно встраивать технику на кухне. Конструкция кухонного гарнитура. Расстановка техники на кухне.
Шкаф для бытовой техники на кухне. Шкаф для кофемашины на кухне. Хранение мелкой бытовой техники на кухне. Шкаф для мелкой кухонной техники.
Как правильно встраивать технику на кухне. Шкаф для бытовой техники на кухне. Шкаф для кофемашины на кухне. Хранение мелкой бытовой техники на кухне. Шкаф для мелкой кухонной техники.
Удобные шкафы для кухни. Кухонный шкаф для бытовой техники. Встраиваемая техника для кухни. Современная удобная кухня.
Как правильно встраивать технику на кухне. Удобные шкафы для кухни. Кухонный шкаф для бытовой техники. Встраиваемая техника для кухни. Современная удобная кухня.
Подключить мойку на кухне схема монтажа. Схема расключения розеток для кухни. Розетки на кухне для встраиваемой техники.
Как правильно встраивать технику на кухне. Подключить мойку на кухне схема монтажа. Схема расключения розеток для кухни. Розетки на кухне для встраиваемой техники.
Схема монтажа электропроводки на кухне. Проводка на кухне под встраиваемую технику схема разводка электрики. Разводка электрики на кухне схема. Схема разводки электропроводки на кухне под встраиваемую технику.
Как правильно встраивать технику на кухне. Схема монтажа электропроводки на кухне. Проводка на кухне под встраиваемую технику схема разводка электрики. Разводка электрики на кухне схема. Схема разводки электропроводки на кухне под встраиваемую технику.
Шкаф для кухонной техники. Шкаф для кофемашины на кухне. Полка для кофемашины на кухне. Шкаф для бытовой техники на кухне.
Как правильно встраивать технику на кухне. Шкаф для кухонной техники. Шкаф для кофемашины на кухне. Полка для кофемашины на кухне. Шкаф для бытовой техники на кухне.
Схема подключения проводки на кухне. Схема электропроводки освещения в кухне. Схема монтажа электрики на кухне. Схема размещения розеток на кухне с размерами.
Как правильно встраивать технику на кухне. Схема подключения проводки на кухне. Схема электропроводки освещения в кухне. Схема монтажа электрики на кухне. Схема размещения розеток на кухне с размерами.
Встраиваемая техника Хаер для кухни в интерьере. Кухня с большим холодильником. Кухонный гарнитур с бытовой техникой. Кухня с встроенной бытовой техникой.
Как правильно встраивать технику на кухне. Встраиваемая техника Хаер для кухни в интерьере. Кухня с большим холодильником. Кухонный гарнитур с бытовой техникой. Кухня с встроенной бытовой техникой.
Как правильно встраивать технику на кухне
Схема расположения бытовой техники на кухне. План размещения техники на кухне. Схема расстановки техники на кухне. Правильное размещение бытовой техники на кухне.
Как правильно встраивать технику на кухне. Схема расположения бытовой техники на кухне. План размещения техники на кухне. Схема расстановки техники на кухне. Правильное размещение бытовой техники на кухне.
Встраиваемая техника для кухни AEG. Встраиваемая техника АЕГ для кухни. Маунфилд встраиваемая техника. Встраиваемая техника для кухни Bosch.
Как правильно встраивать технику на кухне. Встраиваемая техника для кухни AEG. Встраиваемая техника АЕГ для кухни. Маунфилд встраиваемая техника. Встраиваемая техника для кухни Bosch.
Встроенная техника для кухни. Встроенная микроволновка в кухонный гарнитур. Кухонный гарнитур со встроенной техникой. Кухонный гарнитур со встраиваемой техникой.
Как правильно встраивать технику на кухне. Встроенная техника для кухни. Встроенная микроволновка в кухонный гарнитур. Кухонный гарнитур со встроенной техникой. Кухонный гарнитур со встраиваемой техникой.
Монтаж проводки на кухне схема. Схема разводки электропроводки на кухне. Схема подключения проводки на кухне. Розетки на кухне схема электропроводки.
Как правильно встраивать технику на кухне. Монтаж проводки на кухне схема. Схема разводки электропроводки на кухне. Схема подключения проводки на кухне. Розетки на кухне схема электропроводки.
Стиральная машина на кухне. Стиральная машинпмеа кухне. Стиральная машина в интерьере кухни. Встраиваемая техника для кухни.
Как правильно встраивать технику на кухне. Стиральная машина на кухне. Стиральная машинпмеа кухне. Стиральная машина в интерьере кухни. Встраиваемая техника для кухни.
Схема расстановки розеток на кухне. Нормы расположения розеток на кухне. Схема расположения розеток по высотам.
Как правильно встраивать технику на кухне. Схема расстановки розеток на кухне. Нормы расположения розеток на кухне. Схема расположения розеток по высотам.
Пенал для встраиваемой духовки. Встроенная микроволновка в кухонный гарнитур. Духовка встроенная в шкаф. Встроенная микроволновка на кухне.
Как правильно встраивать технику на кухне. Пенал для встраиваемой духовки. Встроенная микроволновка в кухонный гарнитур. Духовка встроенная в шкаф. Встроенная микроволновка на кухне.
Встроенная техника. Встраиваемая техника для кухни. Современная техника для кухни. Встроенная бытовая техника для кухни.
Как правильно встраивать технику на кухне. Встроенная техника. Встраиваемая техника для кухни. Современная техника для кухни. Встроенная бытовая техника для кухни.
Высота установки электророзетки для холодильника. Схема подключения кухонной вытяжки к электросети.
Как правильно встраивать технику на кухне. Высота установки электророзетки для холодильника. Схема подключения кухонной вытяжки к электросети.
Встраиваемая техника для кухни. Встроенная техника для кухни. Встраиваемые кухни. Встраиваемая техника в интерьере.
Как правильно встраивать технику на кухне. Встраиваемая техника для кухни. Встроенная техника для кухни. Встраиваемые кухни. Встраиваемая техника в интерьере.
Встроенная кухня. Встроенная техника для кухни. Встроенный холодильник маленький. Кухня со встроенной техникой.
Как правильно встраивать технику на кухне. Встроенная кухня. Встроенная техника для кухни. Встроенный холодильник маленький. Кухня со встроенной техникой.
Шкаф для кухонной техники. Шкаф для бытовой техники на кухне. Кухня со встроенной микроволновкой. Микроволновая печь в интерьере кухни.
Как правильно встраивать технику на кухне. Шкаф для кухонной техники. Шкаф для бытовой техники на кухне. Кухня со встроенной микроволновкой. Микроволновая печь в интерьере кухни.
Шкаф на кухню. Шкаф для кофемашины на кухне. Потайной шкаф на кухне. Шкаф для бытовой техники на кухне.
Как правильно встраивать технику на кухне. Шкаф на кухню. Шкаф для кофемашины на кухне. Потайной шкаф на кухне. Шкаф для бытовой техники на кухне.
Выдвижная полка для кухонной техники. Шкаф для кухонной техники. Шкаф для мелкой бытовой техники на кухне. Выдвижные полки для техники на кухню.
Как правильно встраивать технику на кухне. Выдвижная полка для кухонной техники. Шкаф для кухонной техники. Шкаф для мелкой бытовой техники на кухне. Выдвижные полки для техники на кухню.
Кухонный гарнитур с посудомоечной машиной. Угловая кухня с посудомоечной машиной. Посудомоечная машина встроенная в кухню. Кухня со встроенной посудомоечной машиной.
Как правильно встраивать технику на кухне. Кухонный гарнитур с посудомоечной машиной. Угловая кухня с посудомоечной машиной. Посудомоечная машина встроенная в кухню. Кухня со встроенной посудомоечной машиной.